FERRI ARCHITEKTEN

AUSGEWÄHLTE  REALISIERTE  PROJEKTE    DEUTSCHLAND

Casa solare ferri 5    2006

  FERRI  ARCHITEKTEN

FOTOS: hiepler,brunier Berlin

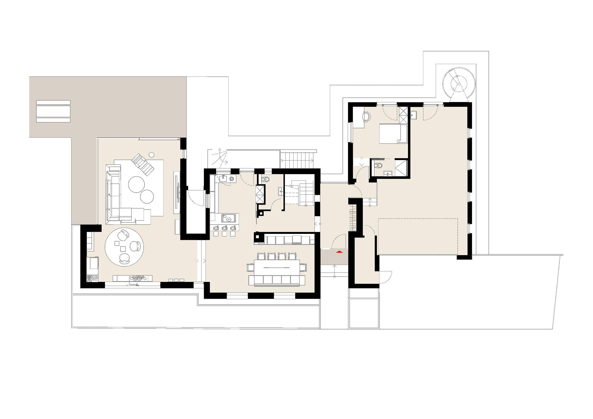
Auch 13 Jahre nach der Planung ist das Plus-Energiehaus CSF5 mit KfW-40-Effizienzhaus-Standard und fortschrittlichem Energiekonzept auf der Höhe der Zeit. Als experimenteller Entwurf geboren, hat es sich durch seine planerisch sehr intensiven Vorarbeit und konsequent reduzierten Bauweise als Modell für andere Folgeprojekte bewiesen und als Konzepttypus bewährt. (Stand 02/2019)

Das nur 4,80m breite zweigeschoßige Haus ist in vorgefertigter Holzrahmen-Bauweise auf einem Betonboden mit Streifenfundament aufgestellt. Seine Wohnfläche beträgt 116 m2. Es steht in zweiter Reihe auf einem schmalen Grundstück. Die Außenhaut besteht aus der tragenden Holzkonstruktion, Hanfdämmung, Holzweichfaserplatten sowie Außenputz. Die Innenwände sind in Trockenbauweise ausgeführt. Das flach geneigte Pultdach hat in der Dachabdichtung integrierte Photovoltaikelemente zur Stromgewinnung. 

Die Holzfensterrahmen sind deckend lackiert und die Fenster haben eine dreifache Isolierverglasung.

Eine Luft-Wasser-Wärmepumpe von Stiebel-Eltron arbeitet seit 11 Jahren problemlos. Zwei vor dem Haus als Sonnenschutz aufgeständerte Solarkollektoren dienen zur Heizungsunterstützung und Warmwasserbereitung. 

Die integrierte Wohnraumlüftung mit Wärmerückgewinnung rundet das Energiekonzept ab. 

Dieses war 2008 bei der Fertigstellung des Hauses sehr innovativ und sorgt auch aktuell für einen Strom-Jahresüberschuß von ca. 500 KWh.

Das Plus-Energie- oder Energiegewinnhaus bekam Auszeichnungen: Das Energie-Plus-Gütesiegel 2014 der EOR Rheinland-Pfalz und die Plakette des Deutschen Solarpreises 2009.

Das Haus wird von den Architekten selbst bewohnt.

Obergeschoß

Erdgeschoß

Haus in den Weinbergen 2014

  FERRI  ARCHITEKTEN

Fotos: Tschernow Berlin

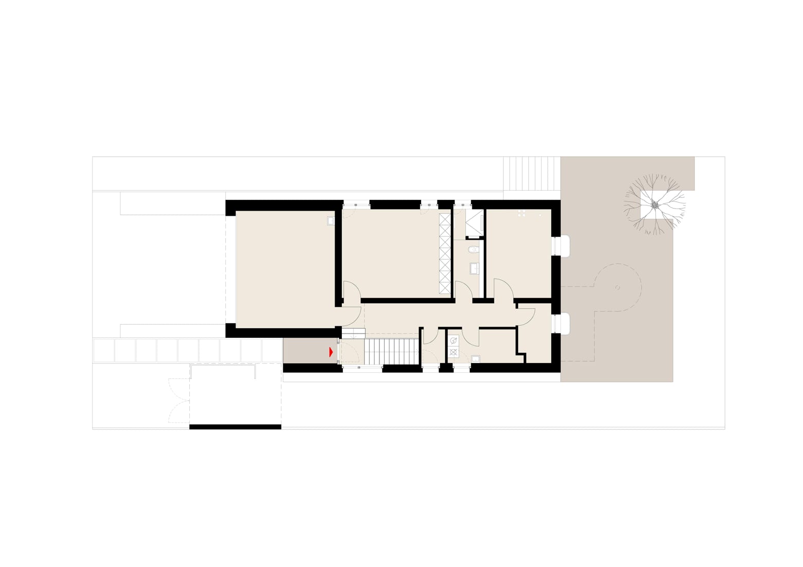
Das zweigeschossige EFH befindet sich in Hanglage inmitten von Weinbergen am Ortsrand gelegen. Der Zugang Straßenseite erfolgt über die obere Ebene, wo sich auch die Wohnräume befinden. Von dort sind auch die begehbaren Dachterrassen zugänglich, welche den Ausblick in die Landschaft rundum erlauben. Die untere Wohnebene enthält weitere Schafzimmer, sowie Gästezimmer und Nebenräume. Von dort erfolgt auch der Zugang zum Garten.

Der Neubau ist aus Hochloch-Ziegeln gemauert und mit WDVS auf der Außenseite versehen. 

Heizung, Warmwasserbereitung und Lüftung:

Zum Einsatz kommt eine Luft-Wasser-Wärmepumpe, ein zentrales Lüftungsgerät LWZ 403 SOL mit zwei Solarkollektoren als Heizungsunterstützung und zur Warmwasserbereitung. 

Die integrierte Lüftungsanlage ist mit Wärmerückgewinnung ausgestattet.  

Energetischer Standard: KfW-Effizienzhaus 55.

Erdgeschoss

Untergeschoss

H a u s   B r u n s     2015

  FERRI ARCHITEKTEN

Fotos: Tschernow Berlin


Zum barrierefreien Wohnen in diesem Einfamilienhauses am Hang gesellen sich eine optimal gedämmte Gebäudehülle sowie eine hocheffiziente Anlagentechnik (kompakte Luft-Wasser-Wärmepumpe mit integrierter Wohnraumlüftung, Wärmerückgewinnung und solarer Unterstützung).

Das Untergeschoss wurde so konzipiert, dass durch minimale bauliche Veränderungen jederzeit eine autarke 3-Zimmer-Einliegerwohnung realisiert werden kann. So wird die zukünftige Nutzung des Gebäudes mit einer Gesamtwohn- und Nutzfläche von 266,5 m2 flexibel gehalten.

Der Innenausbau samt Trockenbau wurde von Fabian Bruns selbst meisterhaft ausgeführt. Schlichte Gipsputzwände, Ganzglas-Geländer, eine roh belassene Sichtbetondecke und eine dezente Farbigkeit geben dem lichtdurchfluteten Hauptwohnraum ein  loftartiges Wohngefühl.

Im gestalteten Aussenbereich setzt sich diese klare Ästhetik fort, Verwendung finden heimisches Material (Gabionen als Hangbefestigung mit "Kirner Bruch").

Was zunächst kontrastierend wirkt, ist das Resultat von architektonisch verwirklichten Bedürfnissen, die heute zeitgemässes Wohnen und Leben -auch im ländlichen Raum- kennzeichnen.

Technische Anmerkung:

Der Endenergiebedarf des Hauses liegt bei 9,7kWh/m2 Gebäudenutzfläche (An) im Jahr, das entspricht ca.1 Liter Öl/m2 und Jahr.

Erdgeschoss

Untergeschoss

H a u s   M F    2014

  FERRI ARCHITEKTEN

Fotos: Tschernow Berlin

Obergeschoß

Erdgeschoß

H a u s   C S M      2015

FERRI  ARCHITEKTEN

FOTOS: TSCHERNOW BERLIN

Eine Machbarkeitsstudie beim Bestandhaus ergab, dass dessen Renovierung unwirtschaftlich wäre und so wurde zugunsten eines Neubaus entschieden.

Das schmale länglichen Hanggrundstück erforderte ein eher untypisches Raumprogramm: Die Wohnräume befinden sich im obersten Staffelgeschoß, ergänzrt durch eine großzügige Panorama-Dachterrasse. Vom Obergeschoß führt eine Wendeltreppe in den Garten, der terrassiert hangaufwärts liegt. Die mittlere Hausebene beherbergt die Schlafräume und Bäder, das Untergeschoß liegt im Hang eingegraben, dort befinden sich die Technik und Hauswirtschaftsräume, Zugang zur Garage sowie der Hauseingang strassenseitig.

Die verwendeten Materialien sind Kalksandstein und Beton, Sichtbeton für die Innentreppe  und Holzparkett für die Böden im Haus. Die Außenhaut als Wärmedämmverbundsystem (WDVS). 

Beheizung mit Gasbrennwerttherme, solarunterstützt. Die zentrale Wohnraumlüftung arbeitet mit Wärmerückgewinnung. Der energetische Standard ist KfW-Effizienzhaus 55.

 Staffelgeschoß

Erdgeschoß

Untergeschoß

H a u s   N B      2016

FERRI  ARCHITEKTEN

FOTOS: TSCHERNOW  BERLIN

Erdgeschoß

Obergeschoß

Der 146 qm große Neubau wurde monolithisch mit 42,5 cm Ziegel-Außenwänden (S9) gebaut, die mit einem Kalkputz versehen sind. Er besteht aus zwei Gebäudeteilen, einem zweigeschossigen größeren, der von der Bauherrin bewohnt wird, und einem eingeschossigen kleineren als Einliegerwohnung mit separatem Zugang. 

Das Flachdach des kleineren Gebäudeteils ist zugleich Terrasse für das Obergeschoß des Größeren. 

Die beiden Gebäudeteile  sind nicht unterkellert.

Die Innenarchitektur folgt dem Bedarf der Bewohner nach einem klaren und einfachen Konzept: 

Der längliche rechteckige Grundriss des Hauptwohnhauses wurde zu einem offenen Raum im Untergeschoss mit nur wenigen Festeinbauten gestaltet.

Im Obergeschoß liegen Schlafräume, Ankleide und Badezimmer.

So werden die Sichtbeton-Innentreppe, die Galerie mit großformatigem Pflanzenmotiv und die Sichtbetondecken zu den wichtigsten Gestaltungselementen. Die Fensteröffnungen umrahmen die eindrucksvolle Umgebung, die starke Abschrägung einer Fensterlaibung zum Beispiel, leitet den Blick vom Essbereich hin zum Hügelpanorama und Burg.

Das Gebäude erfüllt den höchsten KfW-Standard als Effizienzhaus 40+. Erreicht wird dies durch den Einbau einer Wärmepumpe, einer Photovoltaikanlage mit Batteriespeicher. Hinzu kommt die kontrollierte Wohnraumlüftung mit Wärmerückgewinnung.

H a u s   f ü r   e i n e   W i n z e r f a m i l i e   an der Nahe   2019

FERRI  ARCHITEKTEN

FOTOS: TSCHERNOW  BERLIN

Erdgeschoß

Obergeschoß

Die Besonderheit des Entwurfs lag in der Ausgangssituation, bei der das zu entwerfende Gebäude mit dem bestehenden, von der Familie bewohnten Satteldachhaus symbiotisch zusammengebracht werden sollte, um zusätzlichen Wohn-und Lebensraum zu generieren.

Es ging dabei nicht darum, lediglich einen Anbau zu erstellen. Vielmehr waren die ästhetischen wie funktionalen Anforderungen an das neue Gebäude hoch. 

Unter Berücksichtigung zeitgenössischer Architektursprache wie klarer Vorgaben der Bauleute (wie einer notwendigen Verbindung im Inneren von alt und neu, ebenerdige Übergänge im Erdgeschoß, ein spezielles Raumprogramm etc.) entstand ein spannendes Ensemble aus drei Baukörpern, Neubau - „Alt“bau - Garage.

Im Innern gehen die Häuser ineinander über ohne merkbare Barriere. (Bilder folgen)

Die Lage am Dorfrand mit Blick sowohl ins weite Grün, zum den hauseigenen Weinbergen, zum Wald wie auch zum Dorf hin bilden eine idyllische Kulisse, die durch großzügige Fenster ins Innere hineinwirkt.

H a u s   L K   in   Rheinhessen   2019

FERRI  ARCHITEKTEN

Erdgeschoß

Obergeschoß

FOTOS: TSCHERNOW  BERLIN

Haus B am Dorfrand   2021

FERRI  ARCHITEKTEN

FOTOS: TSCHERNOW  BERLIN

Das Einfamilienhaus mit Anliegerwohnung liegt in idyllischer Dorfrandlage gelegen und öffnet sich in die hügelige Landschaft. Die oberirdischen Geschosse sind in massiver Holzbauweise ausgeführt. 

Das KfW-Effizienzhaus 40+ ist vor allem durch seine Materialien wie Holz, Sichtbeton und Rohstahl sehr klar und aussagestark in der Architektursprache. Eine hohe passgenaue Detailfreude und die sorgsame Ausführung der einzelnen Gewerke machen es zu einem harmonischen authentischen Gebäude, das schon vor der Möblierung viel mitbringt. Die sichtbare Deckenkonstruktion und Sichtholzwände, die Treppe aus Sichtbeton und das rohbelassene Stahlgeländer sowie die mit Lehmputz versehenen Innenwände zeugen von einem materialbewussten und ästhetischen Ansatz, der durch ein großzügiges Raumgefühl und Offenheit ergänzt wird. Im Wohnzimmer ermöglichen große zu öffnende Glasfronten eine Verbindung von innen und außen und erweitern den Wohnraum in die Natur. Das Süddach wurde komplett mit intergrierten PV- Modulen bestückt.

Haus für eine Familie - über der Stadt     2024

FERRI  ARCHITEKTEN

Fotos: Tschernow Berlin