FERRI ARCHITEKTEN

Brückenhaus Bad Kreuznach    2018

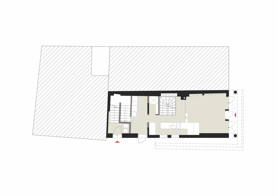
Restaurierung des Brückenhauses Nr. 94, Bad Kreuznach

Stand Dezember 2018 


In den vergangenen Monaten wurden diverse Arbeiten am Haus durchgeführt und Untersuchungen vorgenommen. 

Im Folgenden dazu ein Überblick:

Beim Rückbau bzw. der Freilegung des Erdgeschosses wurden erhebliche Schäden am Gebäude festgestellt. Vor allem die Holzbalkendecke zeigte sich brückenseitig stark aufgelöst, die Balkenköpfe verfault. Zwischen dem massiven zweigeschoßigen Sockel und der Brücke darunter ziehen sich durchgehende Risse. Der Pflanzenwuchs, vor allem sehr viel Efeu, wurde entfernt. 

Statische Untersuchungen zur Standsicherheit wurden eingeleitet und dauern noch an. 

Der Eigentümer beauftragte außerdem die Restauratorin Juliane Reinhardt in Abstimmung mit der Denkmalpflege mit einer Befunduntersuchung, welche sehr detailliert durchgeführt wurde und interessante Ergebnisse lieferte (diese liegt dem Architekten Sandro Ferri vor). Hier die Hauptaussagen des ausführlichen schriftlich und fotografisch dokumentierten Befundes: 

In bis zu 15 Wandschichten ließen sich mittels Stratigraphie beispielsweise 8 diverse „Fassungen“ (Befunde in zeitlich nachvollziehbarem Renovierungskontext) bestimmen. Dazu zählen Reste von Putzschichten (zum Teil mit Tierhaar-Einschlüssen), Anstrichen, Tapeten -auch handgemalt- , sowie Friese, Sockel mit gemalten Bronzebändern, Holzvertäfelungen in verschiedensten Ausführungen, Holzkonstruktionen, Holzimitaten, auch geschwärzte Holzbalken. Auch die Fenster und Türen wurden im Hinblick auf die Bauhistorie untersucht, die Befunde legen den Zustand der einzelnen Räume und Bauteile präzise dar. 

Die Ergebnisse lassen darauf schließen, daß das Brückenbaus im 19. Jahrhundert grundlegend, wahrscheinlich von der Familie Wohlleben, saniert wurde.

Historisches Markthaus am Eiermarkt 

Bad Kreuznach   2015

Restaurierung

F E R R I   A R C H I T E K T E N